Baggrund og formål
Ørbæk er som en af kommunens centerbyer en vigtig brik i kommunens bymønster. Byen fungerer som et vigtigt udbudscenter for privat- og offentlig service i den sydlige del af kommunen. Ørbæk har da også oplevet stor befolkningsfremgang i de seneste år, hvor der bl.a. er gennemført en stor udvidelse af boligudbuddet, bl.a. med et stort parcelhusbyggeri omkring Mejerivænget, tæt-lavt byggeri i Krohaven og ved det gamle rådhus mm. Dette har medvirket til den positive udvikling i befolkningstallet, der fra 2010 til 2020 er steget med 8%, og kommunen forventer også i fremtiden positiv befolkningsudvikling i byen.
Det er derfor også vigtigt, at der løbende sikres gode muligheder for fortsat boligtilførsel i byen, både i form af byomdannelse og nye udlæg på bar mark.
Nyborg Byråd vedtog Planstrategi 2019 28. januar 2020. Med vedtagelsen af strategien besluttede byrådet, at kommuneplanen skulle revideres delvist, og at der som en del af denne revision skulle udlægges et nyt boligområde ved Sentvedvej i Ørbæk. Byrådet vedtog konkret, at: Kommunen "vil sikre at der fortsat er attraktive byggegrunde i Ørbæk gennem en udvidelse af byen mod øst ved Sentvedvej. Udbygningen skal ske med respekt for natur- og beskyttelsesværdier samt de store drikkevandsinteresser i området."
Dette tillæg til Kommuneplan 2017 udmønter denne del af den besluttede kommuneplanrevision ved at udlægge nye rammer for lokalplanlægningen gældende for nuværende landzonearealer nord for Sentvedvej i direkte tilknytning til nuværende byzonearealer. Formålet med planlægningen er, at give mulighed for en fremtidig lokalplanlægning for boliger i form af parcelhuse (åben-lav) og rækkehuse (tæt-lav) samtidig med, at der tages hensyn til natur- og beskyttelsesværdier samt de store drikkevandsinteresser i området.
Figur 1: Illustration af en fremtidig byudvikling med rækkehuse nærmest Sentvedvej. Set umiddelbart syd for byudviklingsområdet.
Foroffentlighed
Der er ikke afholdt foroffentlighed i henhold til planlovens (lovbek. nr. 1157 af 01/07/2020) § 23c forud for udarbejdelsen af nærværende tillæg, da ændringen af kommuneplanen er vedtaget med Planstrategi 2019.
Kommuneplantillæggets indhold
Boligbyggeriet i Ørbæk har gennem de senere år været markant, og er primært sket mod vest i Mejerivænget og ved Spurvevej - altovervejende som fritliggende parcelhusbebyggelse – og i form af omdannelse og huludfyldning i den eksisterende by – altovervejende som rækkehuse og andet tæt lavt boligbyggeri.
På baggrund af befolkningsprognosen og boligbyggeprogrammet for Nyborg Kommune forventes et gennemsnitligt årligt boligbyggeri i Ørbæk på 5-10 boliger. Ved årsskiftet 2020-2021 var den eksisterende restrummelighed i eksisterende kommunale udstykninger (Mejerivænget og Spurvevej) på ca. 25 grunde. Der er derfor behov for udlæg af nyt byområder til særligt åben-lav boliger. Se nærmere under afsnittet Behovsopgørelse.
Lokalbefolkningen og Byrådet er enige om, at en videreførelse af boligbyggeriet mod vest ikke er hensigtsmæssig, da der skabes stor afstand til byens offentlige og private servicefunktioner (Ørbæk Skole, Ørbæk Midtpunkt, idrætsfaciliteter, dagligvarebutikker, kirke mv.). Hvis Ørbæk skal udvikles som et attraktivt bosætningsområde for børnefamilier, er det afgørende, at byplanlægningen sikrer god sammenhæng og trafiksikkerhed i forhold til byens primære servicefunktioner.
Derfor arbejdes der med en fremtidig byudvikling mod øst. Første etape af byudviklingen øst for Ørbæk planlægges med dette tillæg til Kommuneplan 2017. Etapen omfatter rummelighed til ca. 20 boliger i nær tilknytning til Ørbæk by i form af både åben-lav og tæt-lav boliger. Området er i dag udpeget som en del af et større perspektivareal til boliger øst for Ørbæk. Kommuneplanens resterende perspektivarealer kan inddrages til fremtidig etaper, når det nye boligområde er ved at være udbygget, således at der sikres en fornuftig, trinvis udbygning af byen, indefra og ud.
Sammen med udlægget af det nye boligområder udlægges den første del af en grøn korridor til sikring af de naturmæssige og rekreative interesser i området, der i dag benyttes til landbrugsdrift. Korridoren skal forbindes eksisterende beskyttede naturområder langs Ørbæk Å med et etableret vådområde nord for planområdet samt, i en eventuel fremtidig planlægning, med et mindre §3 beskyttet areal syd for planområdet.
Figur 2: Samlet udviklingsplan for byudviklingen øst for Ørbæk. Dette tillæg udlægger områder til etape 1 af byudviklingen inklusive begyndelsen på en grøn kile nord herom. I næste etape sikres endvidere en forbindelse mellem de beskyttede naturområder nord og syd for byudviklingsområdet. Anden etape af byudviklingen skal ske mellem Sentvedvej og Langemosevej som vist. Dette område er i Kommuneplan 2017 udlagt som perspektivareal til boligudvikling.
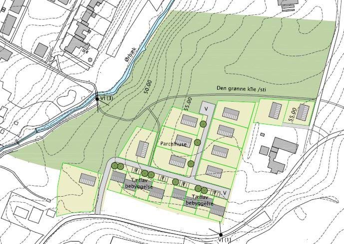
Figur 3: Illustration af, hvordan et nyt boligområde kan indrettes inden for den nye boligramme.
Nye rammer for lokalplanlægningen
Med tillægget udlægges to nye rammer for lokalplanlægningen: 3.B.6, der udlægger et område på ca. 2,1 ha til nyt byzoneareal med mulighed for åben-lav og tæt-lav boliger og 3.R.1, der udlægger et område på ca. 3 ha til rekreativt naturområde i landzone i tilknytning til Ørbæk Å.
Rammeområdet til boligformål muliggør både åben-lav og tæt-lav boligbyggeri i området. Byggeretten fastsættes ud fra Bygningsreglement 2018 med bebyggelsesprocent på 30 for åben-lav og 40 for tæt-lav, en max. højde på 8,5 m og byggeri i max. 2 etager.
For at sikre hensyn til de stedlige beskyttelsesinteresser samt til sikring af de rekreative interesser i området, fastsættes der krav om, at:
- bebyggelsen skal tilpasses landskabet,
- de grønne arealer ned mod åen friholdes for byggeri og anvendes som byens friareal,
- der skal ske landskabelig bearbejdning af overgangen til det åbne land i form af beplantning af naturligt hjemmehørende plantearter,
- der etableres stiforbindelse til ådalen og forberedes stisammenhæng med fremtidige etaper mod øst, og
- der indarbejdes afværgeforanstaltninger ift. grundvandsinteresserne.
Rammeområdet til rekreative formål sikrer en grøn kile mellem åen og det nye byudviklingsområde. Den grønne kile skal fungere som friareal for bebyggelsen, men med offentlig adgang. Området skal etableres som et engareal med naturværdi, så det kan fungere som en økologisk forbindelse, der binder ådalen og vådområdet nord for planområdet sammen. Der tillades ikke bebyggelse i området. Rammen fastsætter endvidere, at der skal etableres stiforbindelse mellem ådalen og byudviklingsområdet samt mod øst til fremtidige etaper.
Figur 4: Oversigt over gældende rammeområders planlagte anvendelse i Kommuneplan 2017 i den østlige del af Ørbæk og afgrænsningen af de nye rammer med dette tillæg.
Retningslinjeændringer og ændringer i hovedstrukturen
Udlægget af det nye boligområde og det rekreative område i tilknytning hertil medfører behov for ændringer i en række af kommuneplanens retningslinjer for Ørbæk (Samlet udviklingsplan, Boligområder og Grønne områder) og konsekvensrettelser i kommuneplanens hovedstruktur. Udlægget medfører endvidere behov for ændringer i tidligere udpegninger til potentielt vådområde og potentiel økologisk forbindelse (Grønt Danmarskort), der overlapper med udpegningen til byudvikling.
Nedenfor er de konkrete ændringer med tillægget vist for hvert opslag i Kommuneplan 2017.
Samlet udviklingsplan - Ørbæk
Retningslinje 5 ændres til følgende ordlyd:
- Inden for eksisterende lokalplanlagte områder er der en rummelighed på ca. 25 boliger og der udlægges areal til ca. 20 nye boliger øst for Ørbæk. Der skal udarbejdes et kommuneplantillæg, jf retningslinje 3, der fastlægger arealer med en rummelighed på yderligere boliger. I kombination med fremtidige omdannelsesområder centralt i byen forventes dette at dække det fremtidige behov for boligbyggeri i Ørbæk i planperioden.
Kortlaget for den samlede udviklingsplan for Ørbæk i kommuneplanen ændres tilsvarende, så arealet svarende til den nye boligramme udtages af perspektivarealudpegningen og lægges til byzonearealet og arealet svarende til den nye rekreative ramme lægges til den grønne struktur.
Figur 5: Revideret samlet udviklingsplan for det østlige Ørbæk. Byområdet er udvidet til at omfatte det nye boligområde, perspektivarealet er indskrænket tilsvarende. Den grønne struktur er udvidet til omfatte den nye rekreative ramme, der udlægges med dette tillæg.
Boligområder - Ørbæk
Retningslinje 1 ændres til følgende ordlyd:
- Åben-lavt og tæt-lavt boligbyggeri skal opføres inden for den eksisterende rummelighed i Mejerivænget og ved Spurvevej, som huludfyldninger og omdannelse i den eksisterende by og langs Sentvedvej i en ny udstykning.
Kortlaget for boligområder i Ørbæk i kommuneplanen ændres tilsvarende, så arealet svarende til den nye boligramme lægges til laget nye boligområder. Se kortet under overskriften Grønne områder - Ørbæk nedenfor.
Retningslinje 8 ændres, så følgende passage tilføjes:
- Før der lokalplanlægges, skal kommunen fastlægge overvågningstiltag for grundvandet. Overvågningen skal ske for at kunne gribe ind, hvis strømningsretningen ændres, eller hvis der sker forurening. Til imødegåelse af eventuel grundvandsforurening som følge af byvækst i det på kortet viste område "Sentvedvej" gælder som minimum følgende krav, der skal indskrives i lokalplanen:
* Arealanvendelsen må alene være til boliger, institutioner eller administrativt erhverv; arealanvendelsen skal fastholdes i fremtiden.
* Eventuelle regnvandsbassiner skal etableres med en tæt membran, godkendt af grundvandsmyndigheden,
* BNBO skal friholdes for en arealanvendelse, der medfører øget fare for forurening,
* På eventuelt kommunalt ejede arealer skal tinglyses forbud mod brug af pesticider,
* Der skal gennemføres oplysningskampagner for beboerne mod brug af pesticider,
* Området skal forsynes med fjernvarme eller anden klimavenlig opvarmningsform,
* Området skal kloakeres med skærpede vilkår til tæthed,
* Faskiner til nedsivning af tagvand skal etableres til sikring af grundvandsdannelsen,
* Tagmaterialerne må ikke forurene tagvandet (undgå bl.a. blyinddækning, tjære eller kobbertagrender),
* Overfladevand fra veje og parkeringsarealer skal opsamles og afledes særskilt med forudgående rensning,
* Eventuelle støjvolde skal etableres med ren jord,
* Overvågningen af grundvandet skal fastholdes, så længe boringerne anvendes i drikkevandsforsyningen.
Grønne områder - Ørbæk
Kortlaget for grønne områder i Ørbæk i kommuneplanen ændres, så arealet svarende til den nye rekreative ramme lægges til laget grønne områder.
Figur 6: Kortlagene for nye boligområder og grønne områder i Ørbæk i kommuneplanen ændres, så arealet svarende til den nye rekreative ramme lægges til laget grønne områder og laget for nye boligområder udvides med den nye boligramme.
Konsekvensændringer i andre retningslinjer
Byudviklingsområdet overlapper med andre arealinteresser i Kommuneplan 2017:
- Potentielle økologiske forbindelser (og dermed Grønt Danmarkskort)
- Potentielle vådområder
Begge udpegninger er uforenelige med byudvikling på arealet, hvorfor dette tillæg reviderer disse udpegninger.
Indenfor de potentielle økologiske forbindelser skal der ske en afvejning af de forskellige interesser, inden der planlægges eller gennemføres projekter, eller opføres ny bebyggelse eller anlæg, som forhindrer at området kan udvikle sig til et nyt naturområde eller en biologisk spredningskorridor. Området benyttes i dag til landbrugsformål (afgrøder).
Anvendelsen til landbrugsformål giver mulighed for en vis spredning af flora og fauna, men med den nuværende anvendelse er der ikke mulighed for væsentligt at øge naturværdien i området. Med udlægget af byudviklingsområdet langs Sentvedvej udlægges samtidig en rekreativ ramme nord herfor, hvis formål dels er, at skabe friarealer til de nye boliger, dels at sikre, at der laves en grøn korridor fra ådalen og på sigt til de beskyttede naturområder nord og syd for planområdet.
Den grønne kile vil være en forudsætning for udviklingen af boligområdet.
Herved begrænses udstrækningen af den potentielle økologiske forbindelse, da byudviklingsområdet ikke har potentiale som økologisk forbindelse, men til gengæld sikres en reel naturkorridor på arealerne udenom, der vil blive omlagt fra landbrugsdrift til engareal.
Med rammeudlægget til rekreative formål sikres det, at den grønne korridor skal udlægges med et reelt naturindhold, f.eks. som eng med vilde blomster og urter. Den fremtidige afgrænsning af den potentielle økologiske forbindelse og Grønt Danmarkskort fremgår af kortet herunder.
Figur 7: Udpegninger til Grønt Danmarkskort i Kommuneplan 2017: Naturområder med særlige beskyttelsesinteresser, økologiske forbindelser og potentielle økologiske forbindelser. Den sydligste del af udpegningen til potentielle økologiske forbindelser udtages af planlægningen svarende til området til det nye boligområde.
Indenfor de udpegede potentielle vådområder må der ikke gives tilladelser til byggeri og anlæg mv., som kan forhindre, at det naturlige vandstandsniveau kan genskabes. Byudviklingsinteresserne i området er derfor i konflikt med en udpegning til potentielle vådområder. Der er tidligere gennemført et vådområdeprojekt mod nordøst (lilla markering på kortet nedenfor) og det forventes ikke at det aktuelle areal for byudvikling kan etableres som vådområde, da det er et meget skrånende areal (fra kote 50-55 over 100 meter), der skråner væk fra det allerede etablerede vådområde. Planen udtager derfor et areal til potentielt vådområde på ca. 2,3 ha.
Udpegede lavbundsarealer syd og vest for byudviklingsområdet friholdes for bebyggelse og er ikke omfattet af rammen til byudvikling. Den nye rekreative ramme overlapper med lavbundsarealerne langs ådalen, hvilket er foreneligt med udpegningen.
Figur 8: Udpegninger til potentielle vådområder i Kommuneplan 2017. Den sydligste del af udpegningen på ca. 2,3 ha udtages af planlægningen svarende til området til det nye boligområde.
Behovsopgørelse
Bekendtgørelse nr. 940 af 2017 om planlægning af byvækst og den tilhørende Vejledning om byvækst opstiller en tretrins metode til planlægning for byvækst: 1) Behovsopgørelse, 2) opgørelse af restrummelighed og 3) vurdering af behov for nyudlæg og eventuel omfordeling af allerede udlagte arealer.
1. Behovsopgørelse
I perioden 2000-2005 blev der bygget mange tæt lav boliger i Ørbæk (ca. 70 boliger i perioden) og kun få enfamilieshuse. Frem mod starten på den finansielle krise i 2008, og umiddelbart efter, skete der en markant udbygning med enfamilieshuse i Ørbæk. Boligbyggeriet gik derefter næsten i stå i perioden 2012-14. I de seneste 5 år er det igen især tæt lav og etageboligbyggeri, der er opført i byen. En oversigt over boligbyggeriet i de seneste 12 år kan ses på nedenstående figur.
Figur 9: Fuldførte boligbyggerier i Ørbæk i perioden 2000-2017 fordelt på anvendelsestyper: Åben lav, tæt lav og etage. Kilde: BBR-udtræk.
I alt er der opført 78 boliger i perioden 2008-2019, og 45 af dem er opført i de seneste 5 år (2015-2019). I 12-års perioden er der sket en balanceret udbygning mellem typerne enfamilieshuse og tæt lav/etage: Enfamilieshuse udgør 40% af boligbyggeriet i perioden. I de seneste 5 år er der næsten kun opført tæt lav og etagebyggeri, der har udgjort 99% af de fuldførte boliger i perioden.
| Byggehistorik (boliger) | 12 år | 5 år |
| Åben lav | 31 | 4 |
| Tæt lav | 26 | 20 |
| Etage | 21 | 21 |
| Total | 79 | 41 |
Tabel 1: Fuldførte boligbyggerier i Ørbæk de senest 12 og 5 år fordelt på anvendelsestyper: Åben lav, tæt lav og etage. Kilde: BBR-udtræk.
En simpel fremskrivning på baggrund af disse tal sætter behovet for nye boliger i Ørbæk til ca. 80 de næste 12 år, hvoraf de 40 vil blive efterspurgt de næste 5 år.
Nyborg Kommunes befolkningsprognose for perioden 2021-2032 beregner en moderat stigning i befolkningstallet i Ørbæk i perioden, hvilket også er tilfældet i de historiske år inkluderet i prognosen (2010-2019). Den årlige vækst i indbyggertallet i Ørbæk på ca. 12 i perioden 2010-2019 forventes at fortsætte frem mod 2032, hvor der i perioden forventes en årlig tilgang på ca. 11 personer.
I Befolkningsprognose 2021 forudsættes en årlig boligudbygning i Ørbæk på i gennemsnit 8,8 boliger i perioden 2021-2032, hvilket er mere end det gennemsnitlige årlige boligbyggeri i de seneste 12-år (6,5 boliger pr. år) og sammenligneligt med det gennemsnitlige årlige boligbyggeri i de seneste 5 år (9 boliger pr. år).
Boligudbygningstakten i de seneste 5 år vurderes, at være mere realistisk for de kommende års udbygning med tanke på, at 12-års perioden indeholder en længere årrække med usædvanlig lav byggeaktivitet ovenpå den finansielle krise i 2008. I perioden 2001-2005 blev der som allerede nævnt bygget væsentlig mere, end der er gjort den seneste 5-års periode (70 boliger mod 45 i de seneste 5 år). Til illustration kan fremhæves, at der i hele perioden 2000-2019 i gennemsnit blev bygget 8,25 boliger pr. år.
På den baggrund vurderes det realistisk, at behovet for nye boliger i Ørbæk de næste 5 år vil være sammenligneligt med den historiske boligudbygning de seneste 5 år. En boligudbygningstakt de næste 12 år som i de seneste 12 år vurderes at være konservativt, hvorfor udbygningsraten for de seneste 5 år (9 boliger pr. år) ligeledes fremskrives til hele 12 års perioden.
Det opgjorte behov fremgår af nedenstående tabel.
| Behov for boligudbygning | 5 år | 12 år |
| Boligenheder | 45 | 108 |
Tabel 2: Behov for nye boligenheder i Ørbæk de næste 12 og 5 år, jf. ovenstående behovsopgørelse.
2. Opgørelse af rummelighed
Restrummeligheden til boligformål i Ørbæk består først og fremmest af kommunale udstykninger til enfamiliesboliger. Derudover er der tre centralt placerede arealer, hhv. et tidligere gartneri, en tidligere tømmervarehandel og et centralt ubebygget areal, der på sigt kan tænkes omdannet til boligformål. Sidstnævnte areal er lokalplanlagt til 17 tæt-lav boliger.
Der er to kommunale udstykninger til enfamilieshuse i Ørbæk: ”Mejerivænget” og ”Spurvevej”. Begge er større boligområder til hovedsageligt enfamilieshuse, der nu næsten er udbyggede.
Begge områder er lokalplanlagte og for en stor del også byggemodnede. Halvdelen af det resterende, planlagte areal ved Spurvevej er endnu ikke byggemodnet.
Den samlede restrummelighed for de to områder pr. sommeren 2020 fremgår af nedenstående tabel.
| Antal grunde/boliger | Mejerivænget | Spurvevej | Samlet |
| Byggemodnede | 15 | 4 | 19 |
| Lokalplanlagte | 0 | 6 | 6 |
| Kommuneplanlagte | 0 | 0 | 0 |
| Total | 15 | 10 | 25 |
Tabel 3: Restrummelighed til enfamilieshuse i Ørbæk pr. sommeren 2020. Alle grundene er lokalplanlagte og størstedelen byggemodnede. Dog er 6 planlagte grunde ved Spurvevej endnu ikke byggemodnede.
Flere centralt beliggende grunde i Ørbæk er i de seneste år blevet omdannet til boligformål i form af tæt lav og etageboligbebyggelser. Det drejer sig om arealer, der tidligere har været benyttet til erhverv eller offentlige funktioner, og som med deres gode tilgængelighed til handel og offentlige funktioner i byen er ideelle til tættere boligbebyggelser med mindre boliger til f.eks. ældre og unge familier.
Ved hovedvejen, der løber gennem Ørbæk, er der endnu to af sådanne større arealer, der potentielt kan omdannes til boligformål: En tidligere tømmervarehandel og et tidligere gartneri. Arealerne er på hhv. 0,9 og 0,6 hektar og har således potentiale til at rumme godt 40 tæt lav boliger til sammen.
Ingen af arealerne er i dag planlagte til tæt lav boligformål. Tømmervarehandlen er ikke i funktion, mens gartnerigrunden benyttes som almindelig enfamiliesbeboelse.
3. Vurdering af behov for nyudlæg
Ørbæk, der er Nyborg Kommunes tredjestørste by, og som har et stort opland, er en velfungerende bosætningsby med skole, foreningsliv, sports- og idrætsfunktioner og gode handelsmuligheder, hvad angår dagligvarer. Byen ligger fordelagtigt ift. både Nyborg, Svendborg, Faaborg og Odense, og der er derfor god tilgængelighed til arbejdspladser. Byens lokalisering i naturskønne omgivelser må anses som attraktiv, og Nyborg Kommune investerer i disse år i at udvikle og forskønne byens centrale dele mellem skole, idræts- og mødestedet Ørbæk Midtpunkt og byens handelsområde.
På den baggrund er det heller ikke overraskende, at byen oplever en befolkningsmæssig fremgang, der også ventes at fortsætte, som allerede beskrevet.
Den opgjorte restrummelighed på 25 enfamiliesboliger (se afsnit 2) kan ikke dække det forventede behov for boliger på 45 de næste 5 år og 108 de næste 12 år. Hvis denne beholdning alene skal dække boligbehovet rækker det kun til de næste 3 år.
De seneste 5 år er en stor del af boligbehovet blevet dækket af tæt lav og etageboligprojekter i form af byomdannelse i Ørbæks centrale dele. Udbygningen af de kommunale udstykninger har tværtimod været stillestående med kun 4 opførte åben lav boliger i perioden 2015-2019. I samme periode er der opført 41 tæt lav og etageboliger.
Denne fordeling må på den ene side tilskrives efterspørgsel efter, og udbud af, centralt beliggende, mindre boligtyper i byen. Her spiller økonomiske hensyn, finansieringsomkostninger, mv. sandsynligvis en rolle i karakteren af efterspørgslen mens udbuddet har været usædvanlig stort, da der i perioden har været frigjort en række centrale arealer fra anden brug: et tidligere rådhus, mejeri og kro som eksempler.
Det er herudover kommunens vurdering, at de resterende grunde til enfamilieshuse ved Spurvevej og Mejerivænget ikke er så attraktive som de første etaper. Grundene ligger i den nordvestlige del af Ørbæk på den ”forkerte” side af Hovedgaden/hovedvejen ift. skole, foreningscentrum, handel og idræt.
Det er på denne baggrund at Byrådet i Nyborg har truffet en principbeslutning om, at den fremtidige byvækst i Ørbæk skal ske på byens østlige side med god forbindelse til de nævnte funktioner.
Set over de seneste 12 år er 40% af de fuldførte boliger i perioden enfamilieshuse. Med forventning om, at de fremtidige byvækstarealer er væsentlig mere attraktive end også de første etaper af både Spurvevej og Mejerivænget er det sandsynligt, at andelen af åben lav boligbyggeri i de næste 12 år udgør ca. 50% af det samlede boligbyggeri og tæt lav og etageboligbyggeri de sidste 50%.
Det giver et behov for 54 åben lav boliger frem mod 2032, hvoraf 25 kan dækkes af de eksisterende kommunale udstykninger, og 54 tæt lav og etageboliger, hvilket kan rummes af de potentielle byomdannelsesområder, der er beskrevet ovenfor.
Nettobehovet for nyudlæg er derfor minimum 29 åben lav boliger frem mod 2030. Med en tæthed på 10 boliger pr. hektar giver det et behov for barmarkarealer til byvækst på ca. 3 hektar. Se opgørelsen i tabel 4.
Dette under forudsætning af, at tæt lav og etageboligefterspørgslen kan dækkes af de centrale omdannelsesarealer (scenarie 1 i tabellen). Såfremt disse arealer ikke udnyttes skal der tillægges ca. 1,5 hektar barmarkarealer til byvækst til tæt lav boliger (scenarie 3) eller ca. 1 hektar, hvis kun det lokalplanlagte areal udnyttes (scenarie 2).
I erkendelse af, at de resterende grunde til enfamilieshuse ved Spurvevej og Mejerivænget er mindre attraktive end en fremtidig udstykning i den østlige del af byen kan det overvejes at tilbagerulle en del af de udbudte grunde. Det vil ikke være hverken samfundsøkonomisk eller kommunaløkonomisk forsvarligt, at opgive de allerede byggemodnede grunde ved Spurvevej og Mejerivænget, men de 6 lokalplanlagte, men endnu ikke byggemodnede grunde ved Spurvevej kan eventuelt opgives.
Dette vil give et tillæg på 0,6 hektar til behovet for nyudlæg til åben lav (scenarie 4, hvor der samtidig sker en delvis byomdannelse med tæt-lav/etage).
Den endelige behovsopgørelse fremgår af nedenstående tabel, hvor forskellige scenarier illustrerer behovet alt efter omdannelsesmuligheder af de centralt beliggende grunde.
| Behov (hektar) | Scenarie 1* | Scenarie 2** | Scenarie 3*** | Scenarie 4**** |
| Åben-lav | 3 | 3 | 3 | 3,6 |
| Tæt-lav/etage | 0 | 1 | 1,5 | 1 |
| I alt | 3 | 4 | 4,5 | 4,6 |
Tabel 4: Tre scenarier for behovet for nyudlæg af barmarkarealer til byvækst alt efter mulighederne for byomdannelse af centrale arealer til tæt lav/etageboliger.
* Fuld dækning af tæt lav/etage behov ved byomdannelse. ** Delvis dækning af tæt lav/etage behov ved byomdannelse. *** Ingen dækning af tæt lav/etage behov ved byomdannelse. **** Delvis dækning af tæt lav/etage behov ved byomdannelse og tilbagerulning af lokalplanlagte åben-lav parceller.
Konklusion
Opgørelsen af behovet for nye arealer til boligudbygning viser, at det forventede boligbehov ikke kan dækkes af de eksisterende udlæg i Ørbæk de næste 10-12 år. Opgørelsen viser også, at udlægget af de ca. 2,1 ha ved Sentvedvej til fortrinsvis åben-lav, men også tæt-lav boliger ligger inden for det beregnede behov. Det konkluderes, at udlægget med dette tillæg er en vigtig brik i at sikre tilstrækkelige boligudlæg i Ørbæk de kommende 10-12 år.
Forhold til anden planlægning
Internationale naturbeskyttelsesområder (natura2000)
Planområdet ligger godt 5,5 km fra det nærmeste natura2000 område, Kajbjerg skov. Kajbjerg skov er udpeget på baggrund af naturtyperne bøg på muld, bøg på kalk, ege-blandskov og elle- og askeskov, surt overdrev og strandvolde.
På grund af planområdets begrænsede udstrækning antages planen kun at medføre lokale påvirkninger, og planen vurderes på den baggrund ikke at kunne medføre en påvirkning af natura2000 området Kajbjerg skov eller andre natura2000 områder, der ligger med stor afstand til planområdet.
Bilag IV arter
Nyborg Kommune har ikke kendskab til tilstedeværelse af truede arter, herunder Bilag IV arter i eller ved planområdet. Arealet benyttes i dag som landbrugsareal.
Kommunen vurderer ikke, at planen kan påvirke truede arter, herunder Bilag IV arter, eller deres ynglesteder.
Naturbeskyttelseshensyn i øvrigt
Byudviklingsområdet er i Kommuneplan 2017 udlagt som en del af en potentiel økologisk forbindelse. Indenfor de potentielle økologiske forbindelser skal der ske en afvejning af de forskellige interesser, inden der planlægges eller gennemføres projekter, eller opføres ny bebyggelse eller anlæg, som forhindrer at området kan udvikle sig til et nyt naturområde eller en biologisk spredningskorridor. Området benyttes i dag til landbrugsformål (afgrøder).
Anvendelsen til landbrugsformål giver mulighed for en vis spredning af flora og fauna, men med den nuværende anvendelse er der ikke mulighed for væsentligt at øge naturværdien i området. Med udlægget af byudviklingsområdet langs Sentvedvej udlægges samtidig en rekreativ ramme nord herfor, hvis formål dels er, at skabe friarealer til de nye boliger, dels at sikre, at der laves en grøn korridor fra ådalen og på sigt til de beskyttede naturområder nord og syd for planområdet.
Den grønne kile vil være en forudsætning for udviklingen af boligområdet.
Herved begrænses udstrækningen af den potentielle økologiske forbindelse, da byudviklingsområdet ikke har potentiale som økologisk forbindelse, men til gengæld sikres en reel naturkorridor på arealerne udenom, der vil blive omlagt fra landbrugsdrift til engareal. Disse vil på sigt kunne planlægges som en økologisk forbindelse.
Med rammeudlægget til rekreative formål sikres det, at den grønne korridor skal udlægges med et reelt naturindhold, f.eks. som eng med vilde blomster og urter.
Produktionsvirksomheder
Planområdet ligger i nærheden af (under 500 m) flere virksomheder, der er omfattet af definitionen af produktionsvirksomheder i planlovens forstand. Det drejer sig om Brdr. Rasmussen Aps (entreprenør og vognmandsvirksomhed), SuperBrugsen Ørbæk/OK tank (bilvask), C. Rønholt ApS (entreprenør og vognmandsvirksomhed), NFS Container- og modtageplads (genbrugsplads), F.H. Maskinteknik ApS (maskinfabrik/maskinværksted), BKN Produktion A/S (virksomheder der foretager vacuum og/eller dypimprægnering af træ eller overfladebehandling af træ) og Ørbæk Autoforretning (autoværksted).
Med undtagelse af F.H. Maskinteknik ApS, gælder for de øvrige virksomheder at afstanden til eksisterende boligområder, er kortere end afstanden til det nye boligområde. For disse virksomheder vurderer Nyborg Kommune, at de nye boliger i byudviklingsområdet, hvor der kun muliggøres lav bebyggelse, ikke kan medføre skærpede miljøkrav.
For F.H. Maskinteknik ApS, er der en afstand på mere end 300 meter til det nye boligområde. Denne afstand sammenholdt med virksomhedens påvirkning af omgivelserne betyder, at det nye boligområde ikke vurderes at kunne medføre skærpede miljøkrav til denne virksomhed.
Klimatilpasning
Ørbæk by er i klimatilpasningsplanen fra 2015 og Kommuneplan 2017 udpeget som fokusområde, da der i fremtiden kan komme oversvømmelser af den centrale del af byen ved skybrud. Der ligger endvidere en del sårbare institutioner og forsyningsanlæg i kategori 1. Der har endnu ikke været problemer med oversvømmelser i fokusområdet.
I forbindelse med arbejdet med Kommuneplan 2021 er der udarbejdet en kortlægning af arealer, der i fremtiden er i risiko for oversvømmelse fra vandløb, i forbindelse med stormflod og i forbindelse med skybrud. Kortlægningen viser, at arealet, der planlægges udlagt til byudvikling ikke er risiko for oversvømmelse ved disse fremtidige ekstremhændelser. Arealet ligger forholdsvis højt i terrænet og med god afstand til Ørbæk Å.
Der vurderes derfor ikke, at være behov for at indtænke afværgeforanstaltninger ift. oversvømmelse ifm. fremtidige ekstremhændelser.
Landskaber
Området er udlagt i kommuneplanen som særligt geologisk interesseområde og som en del af et større sammenhængende landskabsområde. Et særligt geologisk interesseområde må ikke forringes ved sløring eller ødelæggelse af gravning eller ved etablering af bebyggelse, tekniske anlæg, skovrejsning m.v.
Inden for større sammenhængende landskabsområder kan planlægning for eller meddelelse af landzonetilladelse til bebyggelse, herunder tekniske anlæg, kun ske, hvis det er godtgjort, at de landskabelige interesser ikke tilsidesættes.
Planområdet er markant rent landskabeligt med kraftige fald mod både Ørbæk Å og Sentvedvej på ca. 5 m. Oplevelsen af denne del af landskabet er størst fra Ørbæk by og fra Sentvedvej lige ved bygrænsen. Grundet et eksisterende gårdanlæg (Sentvedvej 11) opleves denne del af landskabet ikke særlig tydeligt fra det åbne land.
Byudvikling på arealet vil derfor hovedsageligt have stor landskabelig betydning for Ørbæk Ådal ved Ørbæk by, være meget synligt i området og påvirke såvel udsigten til, som fra ådalen i nærområdet ved byen. Det skal fremhæves, at byudviklingsområdet ligger uden for selve ådalen, der vurderes at være meget sårbar over for etablering af bebyggelse og tekniske anlæg.
For at sikre fortsat kig til og fra ådalen udlægges den rekreative ramme, nord for byudviklingsområdet, der skal friholdes for bebyggelse og udlægges som eng. For at sikre, at det nye område tilpasses landskabet stilles der krav om, at terrænforskelle så vidt muligt skal optages i bebyggelsen - eksempelvis ved at opføre bebyggelse med forskudte planer. Alternativt kan der arbejdes med en vis grad af terrassering af terrænet i retning mod Sentvedvej i forbindelse med byggemodning/udstykning.
Det vurderes, at bebyggelsen i det aktuelle byudviklingsområde, med de beskrevne tilpasninger, kan indpasses i landskabet i forhold til de eksisterende terrænformer og kulturhistoriske landskabselementer på stedet. På baggrund af dette vurderes det, at udlægget til byudvikling ikke tilsidesætter beskyttelsen knyttet til de landskabelige, geologiske og kulturhistoriske interesser. I denne vurdering lægges særlig vægt på, at påvirkningen af landskabet vil være minimal set fra det åbne land.
Muligt fremtidigt udtryk: Fra by-siden og ådalen vil den nye udstykning tydeligt kunne ses. Her set fra broen over Ørbæk Å, der leder op til den gamle kro. Til gengæld giver en ny offentlig sti (forgrunden) adgang til området, og der skabes en ny grøn korridor nord om byudviklingen (til venstre i billedet).
Nuværende udtryk:
Figur 10: Området set fra ådalen.
Muligt fremtidigt udtryk: Kun ét hus fra den nye udstykning vil være fremtrædende fra det åbne land (det midterste på tegningen). Til højre og venstre på tegningen ses eksisterende gårdanlæg.
Nuværende udtryk:
Figur 11: Området set fra det åbne land.
Muligt fremtidigt udtryk: Langs Sentvedvej lige syd for udstykningen vil boligerne komme tæt på. Her vist med rækkehusbebyggelse nærmest vejen.
Nuværende udtryk:
Figur 12: Området set fra Sentvedvej, syd for byudviklingsarealet.
Grundvand
Byudviklingsområdet ved Sentvedvej ligger i område med særlige drikkevandsinteresser, i nitratfølsomt indvindingsområde og indenfor 300 m beskyttelseszone samt i randen af boringsnært beskyttelsesområde (BNBO) til den ene af Ørbæk Vandværks tre aktive indvindingsboringer. Grundvandet er dårligt beskyttet i området. Eventuel forurening som følge af byvækst skønnes at kunne udgøre en risiko for drikkevandsindvindingen på Ørbæk Vandværk. Til imødegåelse af denne risiko er derfor fastlagt en række forholdsregler, der skal følges ved byudvikling på arealet. Disse indarbejdes som retningslinjer i kommuneplanens opslag om boligområder i Ørbæk, jf. afsnittet Kommuneplantillæggets indhold. Inden en nærmere planlægning for området påbegyndes, skal kommunen derfor fastlægge overvågningstiltag for grundvandet og en række forholdsregler, der skal indskrives i lokalplanen.
Byudviklingsområdet ligger desuden i området, hvor to af Ørbæk Vandværks fem boringer er placeret. De to pågældende boringer anvendes ikke pt., men hvis de atter skal inddrages i drikkevandsproduktionen, skal de beskyttes ved udlægning af BNBO, der medfører restriktioner i arealanvendelsen, idet BNBO-udlægningen omkring drikkevandsboringerne skal friholdes for en arealanvendelse, der medfører øget fare for forurening af grundvandet.
Figur 13: Byudviklingsområdet i Ørbæk ligger inden for et område med særlige drikkevandsinteresser, i et indvindingsopland, et nitratfølsomt indvindingsområde og et indsatsområde inden for nitratfølsomme indvindingsområder.
Trafikafvikling
Byudviklingsområdet ligger ved Sentvedvej i det østlige Ørbæk. Udlægget til ca. 20 boliger, der muliggøres med dette tillæg til Kommuneplan 2017 er første etape i en større byudvikling øst for byen. Vejforholdene er ikke gunstige til en større boligudbygning i denne del af byen, hvis den fremtidige trafik skal afvikles via Sentvedvej. Sentvedvej er smal og krydses af forbindelser for bløde trafikanter til skole og børnehave. Netop skole og børnehave betyder, at mange benytter vejen ifm. aflevering og hentning af børn til skole og børnehave. Der er senest lavet en opgradering af vejforløbets vestligste del, forbindelsen til Hovedgaden.
I forbindelse med den nærmere lokalplanlægning for det nye boligområde skal der sikres en fornuftig trafikafvikling fra området: Både fra det nye boligområde, men også en langsigtet plan for trafikafviklingen fra de fremtidige boligområder mellem Sentvedvej og Langemosevej.
Miljøvurdering af planen
Nyborg Kommune vurderer, at planen er omfattet af miljøvurderingslovens § 8, stk. 2, da det er en plan, der fastlægger rammerne for fremtidige anlægstilladelser, og at det ikke kan udelukkes, at planen kan få væsentlig indvirkning på miljøet. Der er på den baggrund truffet afgørelse om, at der skal udarbejdes en miljøvurdering af planerne. Nyborg Kommune har foretaget en afgrænsning af indholdet af miljørapporten. I forbindelse med afgrænsningen er det vurderet, at der kan være en væsentlig påvirkning inden for miljøfaktorerne:
- Biologisk mangfoldighed, flora og fauna
- Befolkningen og menneskers sundhed
- Vand (grund- og overfladevand)
- Landskab
En beskrivelse af de sandsynlige væsentlige miljøpåvirkninger af planen er præsenteret i vedlagte miljørapport, der offentliggøres sammen med planforslaget.
Klager over miljøvurdering:
I henhold til lov om miljøvurdering af planer og programmer og af konkrete projekter (VVM) (Lovbekendtgørelse nr. 973 af 25/06/2020) § 48 stk. 2 kan indholdet af miljøvurderingen påklages efter de regler, der er fastsat i den lovgivning, som planen eller programmet udarbejdes i henhold til. I dette tilfælde planloven. Du kan se klagevejledningen ovenfor.
Klagevejledning
Byrådets afgørelse om forhold, der er omfattet af lov om planlægning, kan for så vidt angår retlige spørgsmål påklages Planklagenævnet. Eventuel klage over retlige spørgsmål skal indgives ved brug af Klageportalen via borger.dk eller virk.dk. Klagen skal være indgivet inden 4 uger efter modtagelse af afgørelsen. Hvis du vil indbringe afgørelsen for domstolene, skal dette ske inden 6 måneder efter modtagelsen af afgørelsen. Vejledning til Klageportal og gebyrordning findes på www.nævneneshus.dk. Gebyret er p.t. 900 kr. for private og 1.800 kr. for virksomheder. Gebyret tilbagebetales hvis klagen fører til, at den påklagede afgørelse ændres eller ophæves, hvis du får helt eller delvis medhold i din klage, eller hvis klagen afvises som følge af overskredet klagefrist, manglende klageberettigelse, eller fordi klagen ikke er omfattet af Planklagenævnets kompetence. Ønskes afgørelsen indbragt for domstolene, skal dette ske inden for 6 måneder fra modtagelse af afgørelsen fra Planklagenævnet.
Retsvirkninger
Kommuneplanen er ikke direkte bindende for ejere og brugere af ejendomme. Byrådet kan dog efter planlovens § 12 udstede forbud mod udstykning og bebyggelse i strid med rækkefølgebestemmelserne (stk. 2) og forbud mod bebyggelse eller ændret anvendelse i strid med rammebestemmelserne (stk. 3).
Kommuneplantillæggets retsvirkninger træder i kraft ved byrådets endelige vedtagelse. Forbudskompetencen efter § 12 træder dog først i kraft ved kommuneplantillæggets offentlige bekendtgørelse.















